Un projet en tête ?
Dites-nous en plus !

TOTEM contact
Nous avons besoin de votre nom
Veuillez entrer le nom de votre entreprise
Votre email est requis
Veuillez saisir votre message
Une erreur serveur est survenue. Veillez réessayer plus tard...
Scroll down

Duplex - Penthouse 2.05

Proche du centre, de la mairie et de l’église de Schuttrange se trouve le nouveau projet "M118" qui est implanté sur un terrain de 15,63 ares au 118, rue Principale.

La résidence se compose de 6 appartements et les façades se veulent résolument urbaines, plus fermées à rue et beaucoup plus généreuses vers l’arrière afin de profiter au maximum du cadre verdoyant. De larges baies permettent des vues dégagées. Un apport considérable en luminosité procure un confort optimal à ses occupants.

L’ensemble des logements est bordé de balcons de différentes tailles. Ceux-ci permettent de profiter de l’environnement paisible tout en gardant sa privacité.

Classe énergétique de cette résidence : AAA

Les prix annoncés comprennent la TVA 17%, le parking, la cave et une cuisine équipée !

Pour des informations supplémentaires, veuillez nous contacter sur le numéro suivant : +35226512126

2.793.344,59 €

Prendre rendez-vous
  • Appartement 0.01.jpg
  • WEB_TAMTAM_M118_VUE_SHOEBOX_APP4_TEXTURES.jpg
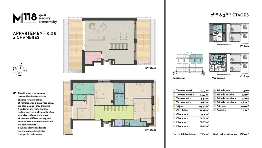
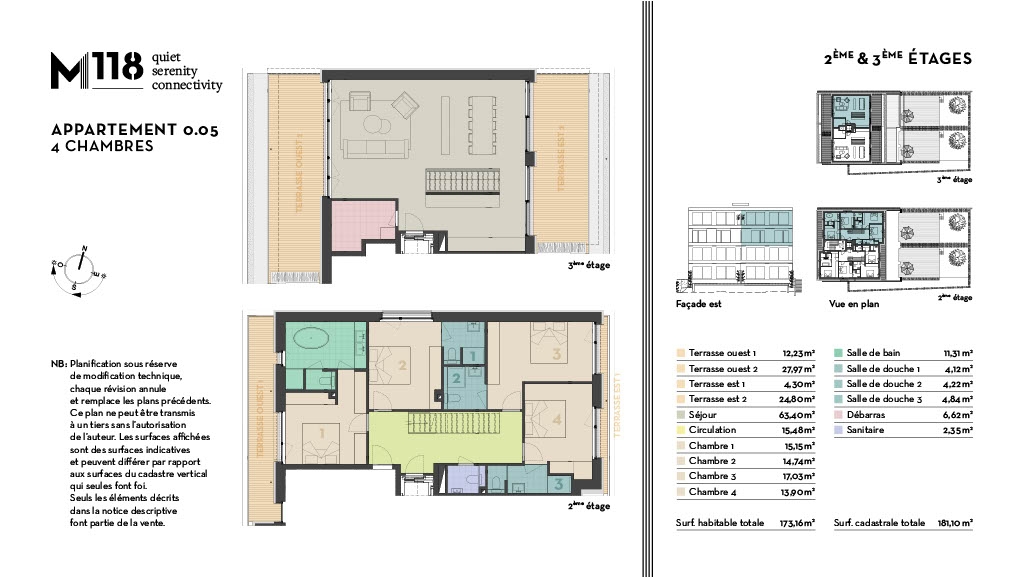
  • 181,10m2
  • 4 Chambre(s)
  • 3 parking(s)

Caractéristiques

  • Chauffage

    • Pompe à chaleur
  • Economie d'energie

    • Triple vitrage
    • Chauffage au sol
    • V.M.C double flux
    • Panneaux photovoltaïques
    • Citerne EP
  • Extérieur

    • Balcon
  • Sécurités

    • Vidéophone
  • Conforts

    • Volets électriques
    • Domotique
  • Energies

    • Indice énergétique
    • DPE CO²
    • DPE énergie
  • Intérieur

    • Cuisine équipée d'une valeur de 40 000 €
    • Cellier

TOTEM est l’interlocuteur unique pour tous vos projets immobiliers au Luxembourg.

Nous contacter